NASHVILLE, U.S.
MARRIOTT HOTEL – NASHVILLE, U.S.
BIM COORDINATION & CD SET
For this project, we partnered closely with the architectural team, maintaining constant coordination to address design updates in real time through Autodesk Construction Cloud (ACC).
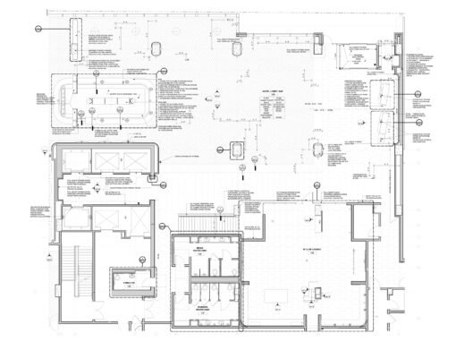
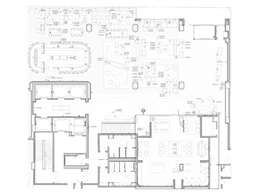
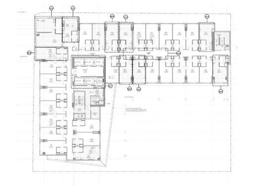
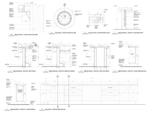
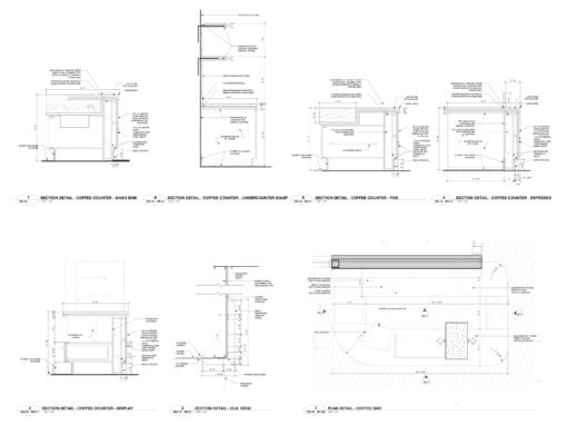
Given the building’s scale and the repetition of guestroom layouts, we implemented tailored BIM strategies to accelerate updates across multiple units. We developed an advanced view template system that leverages workset-based filters to separate and manage different model elements. This allowed us to generate precise floor plans for each purpose, from construction and furniture layouts to finish plans, applied consistently from standard rooms to the presidential suite.
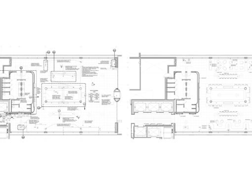
Working from the architectural base model, we created detailed interior models for both public areas and private guestrooms. Custom Revit families were crafted to capture the project’s refined aesthetic, including bespoke millwork and high-end furnishings. The result was a complete, 200+ sheet Construction Documents set covering overall layouts, enlarged guestroom and bathroom plans, and detailed custom furniture details.
Project highlight: Delivered a 200+ sheet CD set for a luxury hotel, featuring detailed interiors for guestrooms and public areas, and optimized BIM workflows and custom Revit families to ensure precision and efficiency across repetitive layouts.
Client: Looney Associates. An interior design firm specializing in designing and constructing high-end hospitality projects.
Assignments: BIM modeling and drafting. Construction drawings.










