NEW HAMPSHIRE, U.S.
LITTLETON CLINIC – NEW HAMPSHIRE, U.S.
BIM COORDINATION & POINT CLOUD MODELING
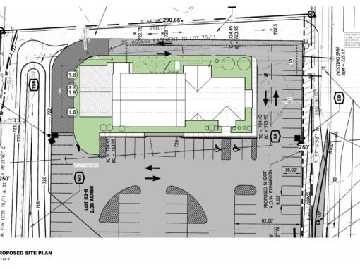
The Littleton Clinic project involved converting a former commercial space into a fully functional outpatient facility. Almost all of the interiors were demolished, and a new second floor was added. Initially, a point cloud scan of the existing structure was provided. Using this, we accurately modeled existing conditions in Revit to reflect the as-built context, which is crucial for healthcare compliance and coordination. Working with phases, we distinguished new construction from existing elements, as most of the exterior shell remained intact.
Collaboration played a key role in this project. We coordinated closely with structural and MEP consultants via Autodesk Cloud, using live-linked models to track updates and resolve clashes throughout design development.
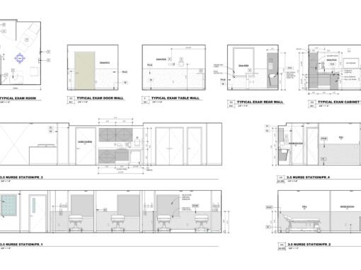
On the interior side, we worked directly with equipment vendors, such as GE and Siemens, to size and configure rooms according to the specific requirements of medical imaging and diagnostic machinery. Our scope included detailed modeling of clinical finishes like wall protection, bases, and lead shielding for radiology rooms, ensuring all technical requirements were met. The result was a comprehensive and coordinated set of Construction Documents, supporting a smooth transition from design to construction.
Project highlight: Transformed a former commercial space into a fully equipped outpatient clinic, adding a new second floor and meeting all healthcare compliance requirements. Delivered a coordinated Revit model and complete CD set through close collaboration with consultants and medical equipment vendors.
Client: Stone River Architects. An architecture firm focused exclusively on healthcare projects, from ground-up facilities to complex renovations.
Assignments: BIM modeling and drafting. Construction drawings.










