DETROIT, U.S.
MARRIOTT HOTEL – DETROIT, U.S.
BIM COORDINATION & CD SET
We’ve developed several of these projects in Revit, and for this example, we’ll highlight the Detroit project as a representative sample of our work. Our role focused on interior design, while an architecture firm worked alongside us, requiring close coordination to manage changes effectively. This was achieved through extensive cloud-based collaboration and monitoring updates within the ACC folder.
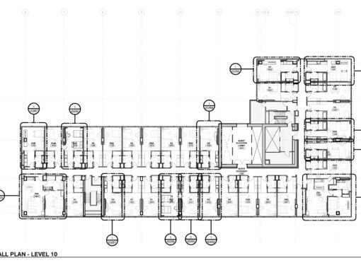
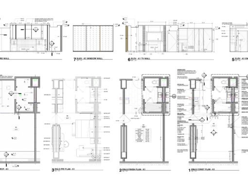
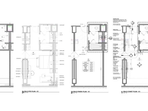
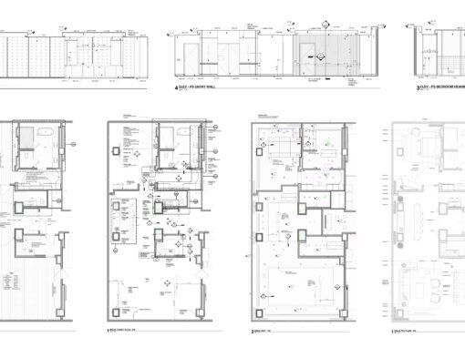
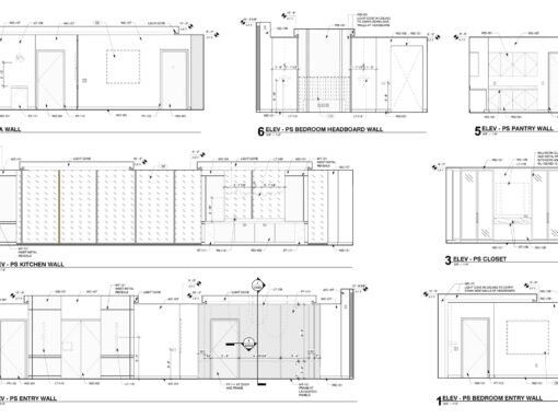
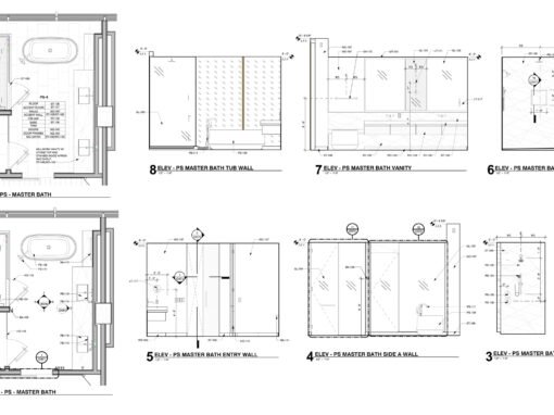
Due to the project’s significant scale, we suggested implementing strategic BIM workflows, which would enable us to apply changes efficiently across all repeating guestrooms throughout the building. A robust view template was created using filters based on worksets, which segmented various model elements. This setup enabled us to produce floor plans with distinct visibility settings, such as construction plans, furniture layouts, and finish plans.
Using the architectural model as a base, we modeled interior design elements for both public areas and private guestrooms. We also developed complex Revit families to reflect the client’s vision of luxurious, high-end accommodations.
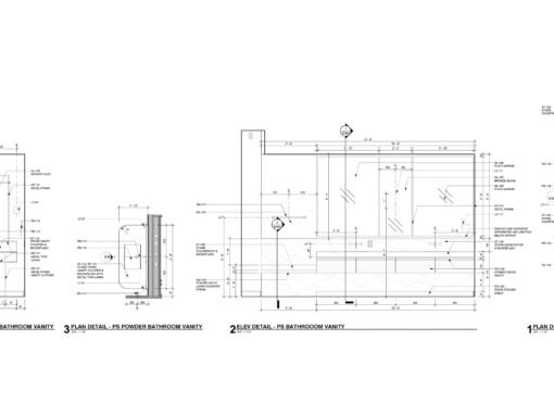
Additionally, we produced a clear CD set consisting of overall plans, enlarged guestrooms and bathroom plans, and detailed millwork drawings.
Project highlight: Delivered a 200+ sheet CD set for a luxury hotel in Detroit, including custom Revit families and detailed plans for guestrooms and public areas. Implemented efficient BIM workflows and cloud-based collaboration to manage large-scale, repetitive layouts with precision.
Client: Looney Associates. An interior design firm specializing in designing and constructing high-end hospitality projects.
Assignments: BIM modeling and drafting. Construction drawings.











