Contact Us

Contact Us

NEW HAMPSHIRE, U.S.

ST JOSEPH HOSPITAL – NEW HAMPSHIRE, U.S.

PHASED RENOVATION & BIM COORDINATION

As part of an ongoing collaboration with Stone River Architects, we supported the renovation of a major hospital wing at St. Joseph Hospital.

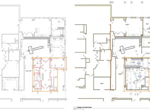
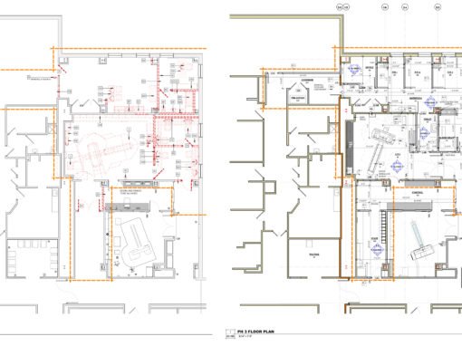
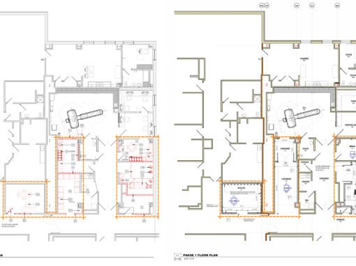
The project was developed in three phases to ensure continuous hospital operations throughout the construction period, a critical requirement in active healthcare environments. We began with a point cloud scan of the existing structure, which we used to generate highly accurate as-built drawings in Revit. From there, we developed the new design, organizing all demolition and construction documentation by phase to clearly communicate the transformation process within the Construction Documents set. Our scope also included producing building sections and technical detail drawings.

Each phase included its own finish plans, equipment layouts, and electrical drawings, reflecting the evolving state of the facility during construction. As with other Stone River projects, tight coordination with structural, MEP, and specialty consultants was essential. We managed this through Autodesk Construction Cloud (ACC), utilizing live-linked Revit models to track updates and resolve coordination issues in real-time.

By maintaining a strong BIM process and ensuring close alignment with consultants, we contributed to a highly coordinated renovation effort that supported the hospital’s ongoing care delivery while modernizing its facilities.

Project highlight: Supported the phased renovation of an active hospital wing, ensuring uninterrupted operations while modernizing facilities. Delivered precise phased documentation and coordinated Revit models through close collaboration with consultants via Autodesk Construction Cloud.

Client: Stone River Architects. An architecture firm focused exclusively on healthcare projects, from ground-up facilities to complex renovations.

Assignments: BIM modeling and drafting. Construction drawings.